September 2025
Our appeal to raise £20,000 for 40 computers for the 400th anniversary library extension has been going strong over the last year. Thank you so much to everyone who donated so far. As of now, the total raised is just over £18,000!
If you would like us to reach our target of £20,000, please click on the green "Donate now" button (right handside of this text on computers, at the bottom of the page on mobile phones), and follow the instructions.
Please read below for further details about the appeal and the exciting plans for the extension of the library. Or email anniversary@latymer.co.uk if you have any questions, or if you would like to donate by other means (e.g. CAF voucher, BACS transfer).
Any funds raised above the target will be used for other elements of the library extension and/or other IT requirements across the school. Donations are collected via the Latymer Foundation at Edmonton (registered charity in England & Wales no 325078), the charitable giving arm of the school.
November 2024

As you will read below, we have very exciting plans for the extension of the library, with building work starting in 2025. Whilst the Latymer Foundation has secured the vast majority of the funding for the actual build, we need your support for the library's fixtures, furniture and IT provision.
This winter, please help us raise £20,000 for 40 computers for the 400th anniversary library extension. These computers will benefit students, library staff and other departments, such as Languages.
To donate today, click on the green "Donate now" button (right handside of this text on computers, at the bottom of the page on mobile phones), and follow the instructions.
Together we can make "40 for 400" a reality and have a direct impact on the learning and teaching environment of current and future students.
Thank you so much in advance for any support you may be able to give! Please email anniversary@latymer.co.uk if you have any questions, or if you would like to donate by other means (e.g. CAF voucher, BACS transfer).
Any funds raised above the target will be used for other elements of the library extension and/or other IT requirements across the school. Donations are collected via the Latymer Foundation at Edmonton (registered charity in England & Wales no 325078), the charitable giving arm of the school.
March 2024
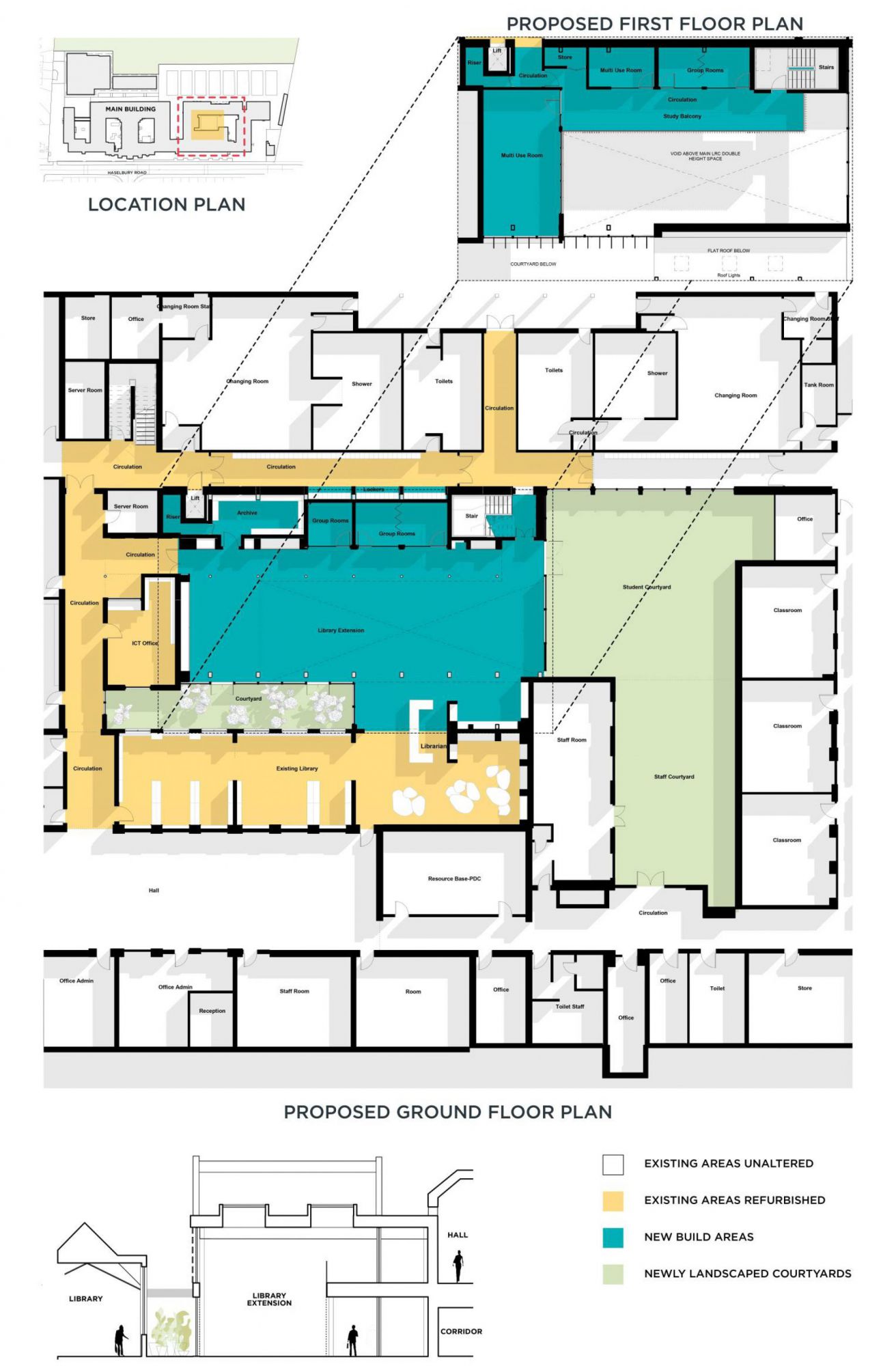
We are gearing up for a fantastic transformation by expanding the Library. The plans comprise a spacious double-height study area supported by a series of group rooms, all nestled in the courtyard next to our current library and surrounded by inviting landscaped courtyards.
Our vision for this project focuses on:
- Creating inspiring spaces: benefitting from generous natural light, surrounded by natural materials with comfortable furniture. We're crafting spaces that help make learning a joy.
- Building a legacy of excellence: our plans aren't just for the present - they're about laying the groundwork for continued success in the future.
- Fostering an inclusive learning environment: we're committed to building a learning space where everyone feels welcome and motivated. This should support self-directed study and collaborative group in a dynamic setting.
- Honoring heritage, embracing modernity: our 1930s library holds a special place in our history and we're keeping that spirit alive. We're complimenting our heritage with modern, state-of-the-art facilities that will connect seamlessly and offer the best of both old and new.
We will also be converting the current Learning Resource Centre into a Geography class - this in turn will free one classroom to be transformed into an extra Science Lab.
To donate today, please click on the "Donate now" button and follow the instructions. Thank you so much in advance for any support you may be able to give!
Please find below images of the current and planned buildings.




